One of the challenges in wine room construction is to create a design that will accommodate the growing collection of the owner. In San Francisco, California, a wine collector worked with a master builder to extend their existing wine cellar. See how Vintage Cellars increased the capacity and functionality of the custom wine room while maintaining the contemporary appeal.
A Custom Wine Cellar Design Created to Satisfy the Needs of a High-End Wine Collector

In building a wine room, your chosen master builder must consider your aesthetic and functional needs. Vintage Cellars, one of our trusted wine cellar dealers in California, has designed and installed stunning home wine cellars. They always make sure that their products and services offer utmost satisfaction.
They are more than willing to help their customers in determining the racking, cooling system, flooring, door, and lighting that will suit their storage needs.
In 2008, they worked on an installation project in a beachfront property in San Francisco. The original wine cellar had a capacity of 1,100 bottles.
In 2013, they needed to expand the room and incorporate various racking configurations to accommodate different bottle sizes. Now, the wine cellar can hold 1,624 bottles after adding the new section to the existing racking.
Racking Solution for a San Francisco Custom Wine Cellar
The home of the client was originally built with wood and glass. The furniture and cabinetry were constructed from Sapele Mahogany, a popular wood species that exhibits a medium to dark reddish brown color.
It has interlocking grain, which creates wavy patterns, including roe, molted design, or fiddle backs. When stained, custom wine racks made from this type of wood become more attractive.
Sapele Mahogany is also stable and much harder than Red Oak or African Mahogany. Since the client wanted scent-free wine racks, this material was the ideal choice because it does not have a distinctive odor.
The owner wanted their custom wine racks to be constructed from the same material. The designing team, contractor, and architect of the home gave Vintage Cellars a palette to match all the woodwork.
Since the client loves to buy wines in bulk cases, the capacity of the original wine room had to be doubled in size to accommodate his growing collection. His collection includes large-format and standard size bottles.
After a careful assessment, Vintage Cellars created 3-dimensional drawings of the wine room, which were labeled Elevations 1 to 5.
First Elevation

Elevation 1 is the right wall as you enter the room. It consists of openings for single bottle storage and an area with a VC-style cover that hides the cooling system’s evaporator.
Diamond bins were added in the middle section. Each opening can accommodate nine bottles stored on top of each other.
In this area, Vintage Cellars created a wider storage area for the client’s large format bottles. Some of these bottles are as big as 9 liters.
Larger size bottles are stored in a coved tray, where there are two cascading heights in each opening. This allows for a full view of the wine labels.
An LED lighting fixture was installed above this area. This type of lighting is known for its ability to illuminate a wine display with a dramatic effect. It emits minimal heat, protecting the wines from being spoiled. LED lights can be a bit more expensive than regular bulbs, but will save you money in the long run. This is because this type of lighting consumes less energy and has a longer lifespan.
Second Elevation

As you continue to the next area in this San Francisco custom wine cellar, there is the left wall where you can find the 8 ¼ inches deep, horizontal display racks, intended for large and standard bottles. Lighting and mirror were installed at the back of this racking.
The two glass shelves in the middle section are intended for the mini car collection and wine cellar accessories of the homeowner.
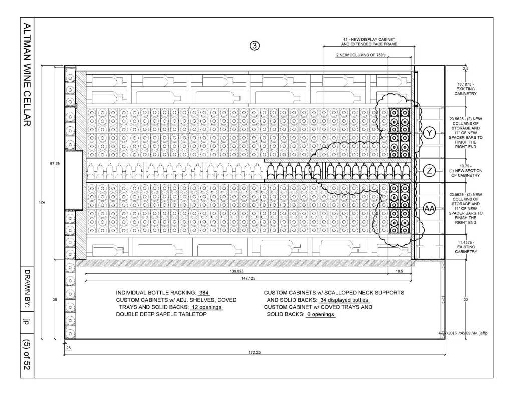
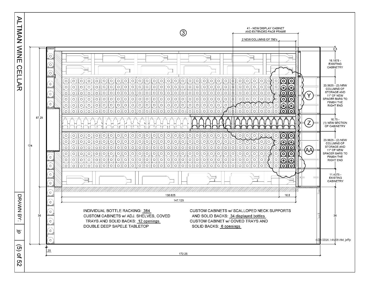
Third Elevation
The existing racking originally had twelve coved trays and six solid backs. To provide more area for wine bottles, Vintage Cellars added custom cabinets with scalloped neck supports.
Large steel supports were installed under the double deep Sapele Mahogany shelf. This will help bear the weight of the cabinetry.
The client buys wines in bulk. He didn’t want the boxes to be visible in the front area of his modern wine cellar. So, Vintage Cellars used the space below the double deep shelf to provide a wide area to stack all the boxes. This also offers convenience because the owner could just place the boxes directly in this area after receiving the boxes.
Fourth and Fifth Elevation

The racking in Elevation 4 consists of storage slots for 98 magnum bottles. Another VC-style evaporator cover can be found in the top section, which conceals the room’s refrigeration unit.
The original racking in Elevation 5 had twelve coved trays, one hundred eighty single storage openings, and custom cabinets with scalloped neck supports for 16 bottles. Vintage Cellars was able to increase the capacity of this area by adding new sections. After the second installation, there were 16 coved trays, custom cabinets for 26 bottles, and 288-bottle individual racks.
Rolling Ladder
Bottles stored in high areas of the wine racks can be accessed easily with a rolling ladder. In this San Francisco custom wine cellar project, a hook ladder was installed because the ceiling height of the room was just over 10 feet. This type of ladder can be moved from one wall to another along the rail. It can also be lifted if you want to use it on a separate wall.
A Professional Builder Can Build a Modern Wine Room for Your Growing Collection
An expert can build the modern or rustic wine cellar design of your dreams. Whether you’re in California or in any part of the United States, and you want rustic wine cellar or a modern wine room, Vintage Cellars can create a stellar wine display area that suits your budget, style, and storage requirements.
Contact them today at +1-800-876-8789 or request a custom design for FREE!






